CENTRAL BUSINESS DISTRICT, NAYA RAIPUR
Client: PIDB(Punjab Industrial Development Board)

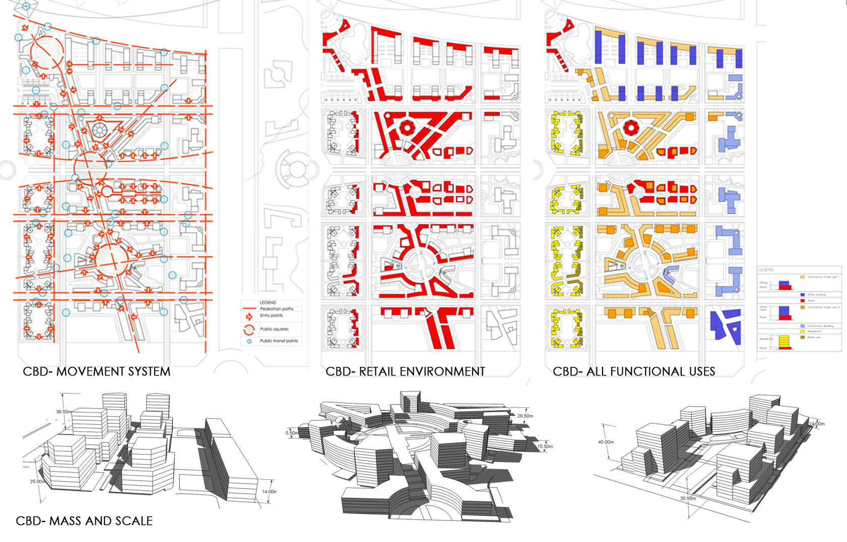
The central business district of Naya Raipur is centrally located in the city along the main axial spine emanating from the capitol complex.

To achieve long-term economic vitality of the district the centrally located CBD offers a mix of businesses, cultural, institutional and residential activities, well connected with public transportation networks.

The broad location of uses was determined primarily by the adjacent landuses to the CBD sectors.

The built mass of the CBD will be produced by repeated building blocks or types which share a similar formal structure, serving similar functions within a predefined zone.

DISCLAIMER
X
This website has been created only for informational purposes and is not intended to constitute solicitation, invitation, advertisement or inducement of any sort whatsoever from us or any of our associates to solicit any work in any manner.